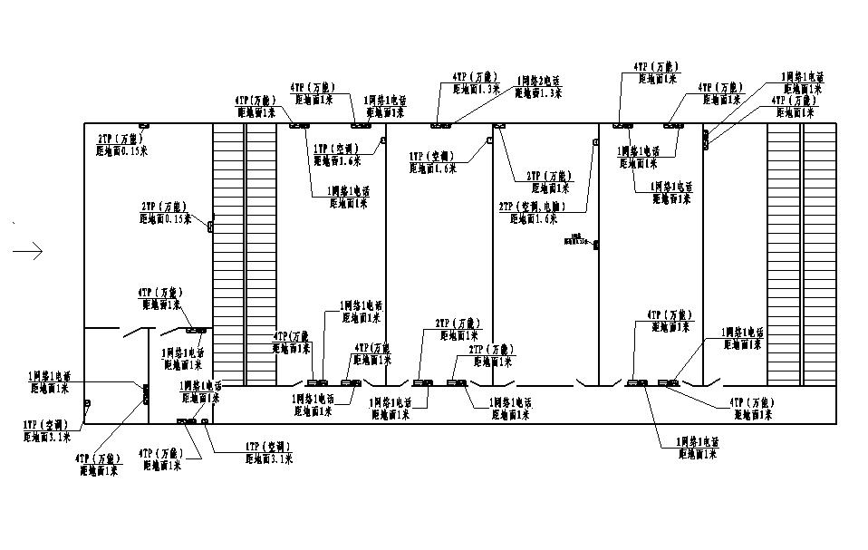
行健楼3楼网络布线点位置参考图 来源:网络 作者:不详 编审: 发布时间:2010-08-15 浏览次数: 次 【字体:小 大】 分享到: 行健楼3楼网络布线点位置参考图 附件下载:行健楼3楼网络布线点位置参考图.rar 关闭 打印正文
用户登录